Elevador residência do tipo tração
Standard Function:
Funções padrão:
1. Abertura automatica quando chamado
2. tempo de espera da porta aberta é automático
3. Abertura automática da porta
4. Botão para fechar as portas mais depressa
5. Botão para abrir a porta
6. Se chamado, a porta reabre
7. Luz e ventoinha automática com temporizador
8. Instalação de piso de serviço
9. Indicador de piso
10. Indicador de direcção
11. Botão de Bloquear o elevador em caso de emergência
12. Porta não abre fora de zona
13. Luz
14. Proteção contra sobrecarga
15. Interruptor Terminal para proteção de viagens
16. Chamadas de emergência na cabine
17. Interfone
18. iluminação de emergência
19. Proteção contra perda de piso
20. proteção contra excesso de velocidade
21. Motor de proteção contra superaquecimento
22. Todo o controle seletivo coletivo
23. Não necessita de supervisão diária
24. Inspeção
25. Alarme de sobrecarga
26. Nivelamento ao parar fora de uma zona de desembarque
27. Diagnóstico automático de defeitos ou problemas
28. botão de chegada
29. Tempo de abertura de porta ajustável
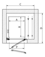
Modelo do elevador residência do tipo tracção (desenho á escala)
1. Porta automática (Entrada única) Tipo A
| |
1A/1 |
1A/2 |
1A/3 |
Tamanho/Capacidade |
| A |
800 |
900 |
1000 |
Cabine |
| B |
1000 |
1100 |
1200 |
| C |
1400 |
1500 |
1600 |
Eixos/ medidas |
| D |
1400 |
1500 |
1600 |
| P |
750 |
800 |
900 |
Porta |
| Kg |
250 |
320 |
400 |
Carga |
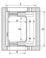
2. Porta Automática (Entrada 180°) Tipo B
| |
2A/1 |
2A/2 |
2A/3 |
Tamanho/Carga |
| A |
800 |
900 |
1000 |
Compartimento |
| B |
1000 |
1100 |
1200 |
| C |
1400 |
1500 |
1600 |
Eixos |
| D |
1600 |
1700 |
1800 |
| P |
750 |
800 |
900 |
Porta |
| Kg |
250 |
320 |
400 |
Capacidade |
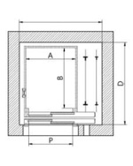
3. Porta giratória (Entrada única) Tipo C
| |
1S/1 |
1S/2 |
1S/3 |
Siza/Load |
| A |
800 |
900 |
1000 |
Compartimento |
| B |
1000 |
1100 |
1200 |
| C |
1400 |
1500 |
1600 |
Eixos |
| D |
1300 |
1400 |
1500 |
| P |
750 |
800 |
900 |
Porta |
| Kg |
250 |
320 |
400 |
Carga |
4. Porta automática (Entrada com 180°) Tipo D
| |
2G/1 |
2G/2 |
2G/3 |
Size/Load |
| A |
800 |
900 |
1000 |
Car |
| B |
1000 |
1100 |
1200 |
| C |
1400 |
1500 |
1600 |
Shaft |
| D |
1200 |
1300 |
1400 |
| P |
750 |
800 |
900 |
Door |
| Kg |
250 |
320 |
400 |
Load |
Lantytk® CORP. é um fabricante profissional de Elevador Residêncial do tipo tração que pesquisa, desenvolve, vende, instala, repara e faz a manutenção dos elevadores, numa única empresa. A empresa cumpre os requisitos ISO9001: 2000 para certificação do sistema de qualidade. Os nossos principais produtos são elevadores residênciais, elevadores de passageiros, elevadores panorâmicos, elevadores de carga, elevador para automóveis, elevador hidráulico, escada rolante, e esteiras rolantes. Caso esteja interessado no nosso Elevador Residêncial do tipo tração , por favor não hesite em nos contactar.
Produtos relacionados

- Elevador de passageiros sem casa de máquinas
O nosso elevador de passageiros Lantytk® sem casa de máquinas preenche os requisitos de proteção ambiental. Economiza energia, reduz os custos, utiliz a pouca área de construção, aumenta a liberdade e tem um design totalmente amigo do ambiente e de fácil utilização.Comparado com outros elevadores de carga do mesmo nível e engrenagem, poupa 25% da energia eléctrica e utiliza menos área de construção. Os produtos Lantytk®, especialmente o elevador de passageiros sem casa ...